Cardigan Cottage

The Cardigan boasts a new, distinctive exterior, and the interior layout is individually created. However the Cardigan park home is still able to evoke memories of the cottages that are seen throughout the glorious British countryside.

park-home-badminton

Raglan

A great new park home from quality manufacturer. The Stately Albion Raglan is centred around a spectacular kitchen complete with centre island. This one is definitely worth a look!

tredegar-single-park-home
Similar HOMES

Hibbs Park Homes Sales Office

Wellow Road

Ollerton

Newark

Nottinghamshire

NG22 9AP

Tel: 01623 860 040

Mob: 07971 803 992

Email: info@hibbsparkhomes.com


Call Today to arrange an appointment:
Home Our Parks Homes for Sale Your Investment News FAQ's Contact Us

Fairfield Park

Wellow Road

Ollerton

Newark

Nottinghamshire

NG22 9FB


Creating homes Community Building dreams

Fairholme Park

Wellow Road

Ollerton

Newark

Nottinghamshire

NG22 9AS


01623 860 040
Hibbs Park Homes

TWO LUXURY RESIDENTIAL

HIBBS PARK HOMES ESTATE

ONE COMMUNITY ATMOSPHERE

Hibbs Park Homes - Park Home estates in Nottinghamshire
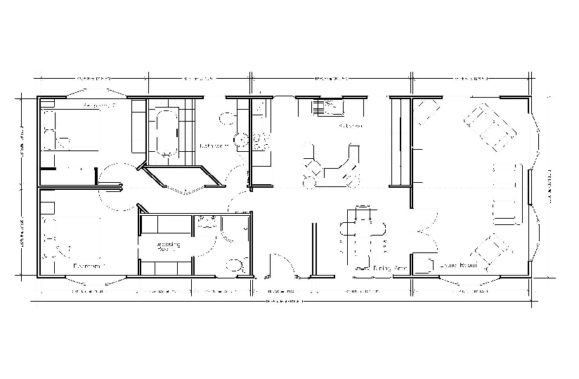
option 1- 46ft x 20ftchatsworth-platinum-contemporary-46x20.pdf

The Platinum Contemporary park home offers a modern exciting décor with a touch of indulgent luxury.

The design of this park home revolves around the kitchen and bathroom. The kitchen is a bold example of modern living. Spacious, light and equipped with integrated fridge/freezer, dishwasher and washing machine. Vaulted ceilings to the lounge, kitchen and diner emphasise the light and airy feel of this home.

The luxurious bathroom has a hint of decadence. Recline in the whirlpool bath with a glass of wine and let your cares wash away.

Why not come along and have a look for yourself, however we do draw the line at stripping off to try out the bath!




Stately Albion Chatsworth Floor Plans Contact Us Platinum contemporary Now Sold