Cardigan Cottage

The Cardigan boasts a new, distinctive exterior, and the interior layout is individually created. However the Cardigan park home is still able to evoke memories of the cottages that are seen throughout the glorious British countryside.

park-home-badminton

Raglan

A great new park home from quality manufacturer. The Stately Albion Raglan is centred around a spectacular kitchen complete with centre island. This one is definitely worth a look!

tredegar-single-park-home
Similar HOMES

Hibbs Park Homes Sales Office

Wellow Road

Ollerton

Newark

Nottinghamshire

NG22 9AP

Tel: 01623 860 040

Mob: 07971 803 992

Email: info@hibbsparkhomes.com


Call Today to arrange an appointment:
Home Our Parks Homes for Sale Your Investment News FAQ's Contact Us

Fairfield Park

Wellow Road

Ollerton

Newark

Nottinghamshire

NG22 9FB


Creating homes Community Building dreams

Fairholme Park

Wellow Road

Ollerton

Newark

Nottinghamshire

NG22 9AS


01623 860 040
Hibbs Park Homes

TWO LUXURY RESIDENTIAL

HIBBS PARK HOMES ESTATE

ONE COMMUNITY ATMOSPHERE

Hibbs Park Homes - Park Home estates in Nottinghamshire
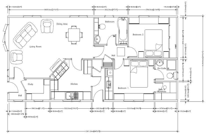
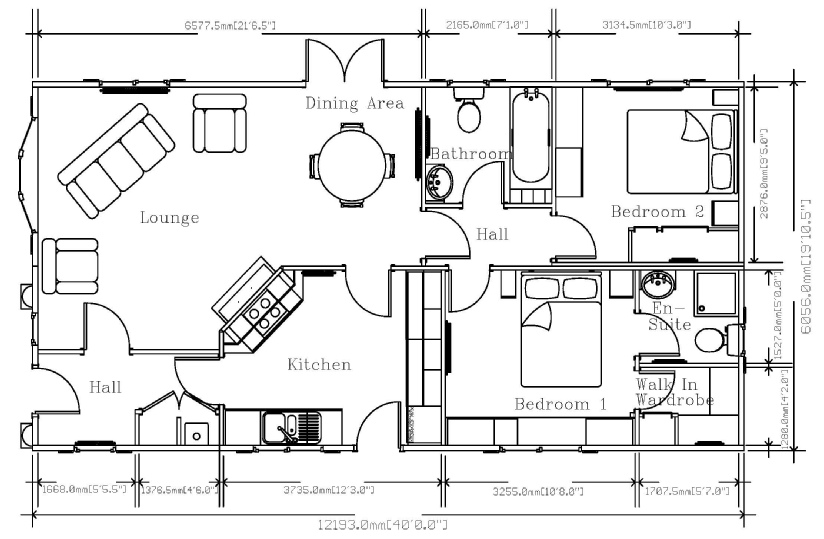
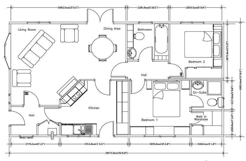
option 1- 36ft x 20ftpark-home-floor-plan-badminton-36x20.pdfpark-home-floor-plan-badminton-36x20.pdfDownload PDF

The now highly sought after Stately Albion Badminton park home is the show home on plot 10 at Fairfield Park. The floor plan we have is the larger 44 x 20ft layout but as you can see from the floor plans below different layouts are available for smaller plots.


Some subtle but effective new features have allowed Stately Albion designers to produce a park home that looks truly unique. The exterior benefits from stylish mock window shutters whilst incorporating a contemporary and yet practical covered area above the front door.


The Badminton's open plan lounge-diner maximises the potential for space, whilst the kitchen has all the amenities required in a modern household. With your comfort in mind, the master bedroom boasts a fantastic en-suite and walk-in wardrobe.


Why not give us a ring or call in to find out more.



Stately Albion Badminton Floor Plans Contact Us